van de kimmenade producten logo

Dierenkliniek IJsselstein

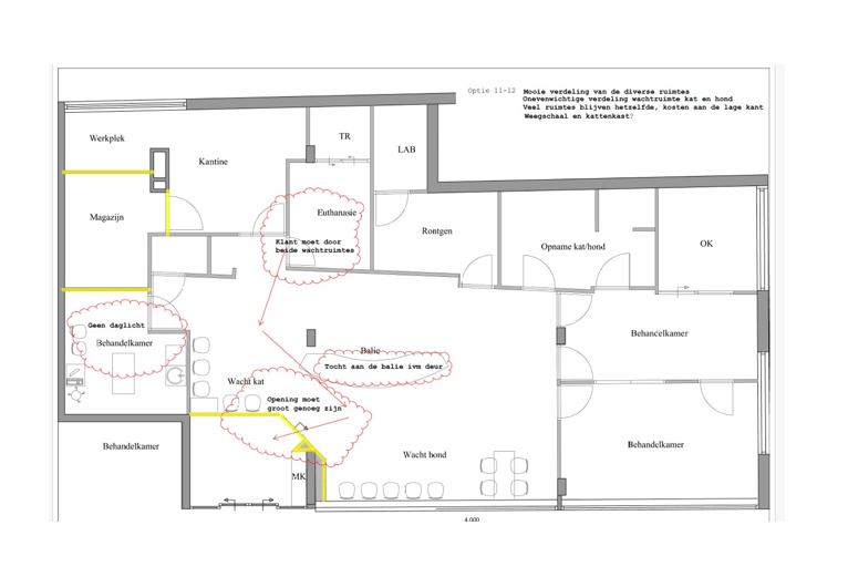
Het pand van de Dierenkliniek in IJsselstein heb ik opnieuw ingedeeld, zodat er een extra behandelkamer in gebruik genomen kon worden. Tevens heeft de wachtkamer een nieuwe look gekregen met meer zitplaatsen en een scheiding voor hond en kat.

Neem contact op

Danielle heeft steeds het grote geheel weten te bewaken en de juiste setting en toon van onze doelstelling weten te vinden. Soms met hele eenvoudige details die echter wel precies het verschil maken waardoor het voor ons en voor de klant klopt. Het is dan ook fijn om nu na enige tijd nog steeds zo enthousiast te zijn over de open samenwerking en het resultaat.

Dierenkliniek IJsselstein

Na

Voor

Na

Voor

Na

Voor

star